Palma 40

empfohlene Belegung: 4 Personen
reguläre Belegung: 4 Personen
maximale Belegung: 4 Personen
Anzahl Kabinen: 2
Anzahl WCs: 1
Anzahl Duschen: 1
Außensteuerstand
BugstrahlruderEleganter holländischer Werftbau
Bitte kontaktieren Sie uns für weitere Informationen, Buchungswünsche oder ein detailliertes Angebot.
Die Preisliste für dieses Boot können Sie hier einsehen und downloaden.
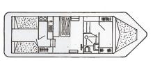
Die Palma 40 ist ein elegantes Boot mit einem Innenausbau aus Mahagoniholz und Beschlägen sowie Lampen aus Messing. Das Boot verfügt über zwei Kabinen, wovon die vordere mit einem Doppelbett und die hintere mit zwei Einzelbetten ausgestattet ist. In der Bootsmitte befindet sich das Badezimmer mit Dusche und WC sowie die gut ausgestattete Küche und der Salon mit Sitzecke. Um die Sonne genießen zu können, gibt es im Außenbereich eine große Terrasse mit Sonnendach und zweitem Steuerstand. Zusätzlichen Komfort an Bord der Palma 40 bietet neben dem Landstromanschluss auch das Bugstrahlruder, das ein noch einfacheres Navigieren zulässt.
- Kabine vorn mit Doppelbett
- Kabine hinten mit 2 Einzelbetten
- Badezimmer mit WC, Dusche und Waschbecken
- Küche
- Salon in der Mitte mit Essecke und Führerstand
- Terrasse mit Gartenmöbeln und 2. Steuerstand
- Landstromanschluss
- Bugstrahlruder zur vereinfachten Handhabung
empfohlene Belegung:Maximal 2 Personen pro Kabine, keine Nutzung zusätzlicher Schlafplätze im Salon
reguläre Belegung:Maximale Belegung aller Betten in den Kabinen, keine Nutzung zusätzlicher Schlafplätze im Salon
maximale Belegung:Maximale Belegung aller Betten in den Kabinen sowie Nutzung der zusätzlichen Schlafplätze im Salon
→ Boot Palma 40 jetzt anfragen ←


Was bedeuten die Belegungsarten?